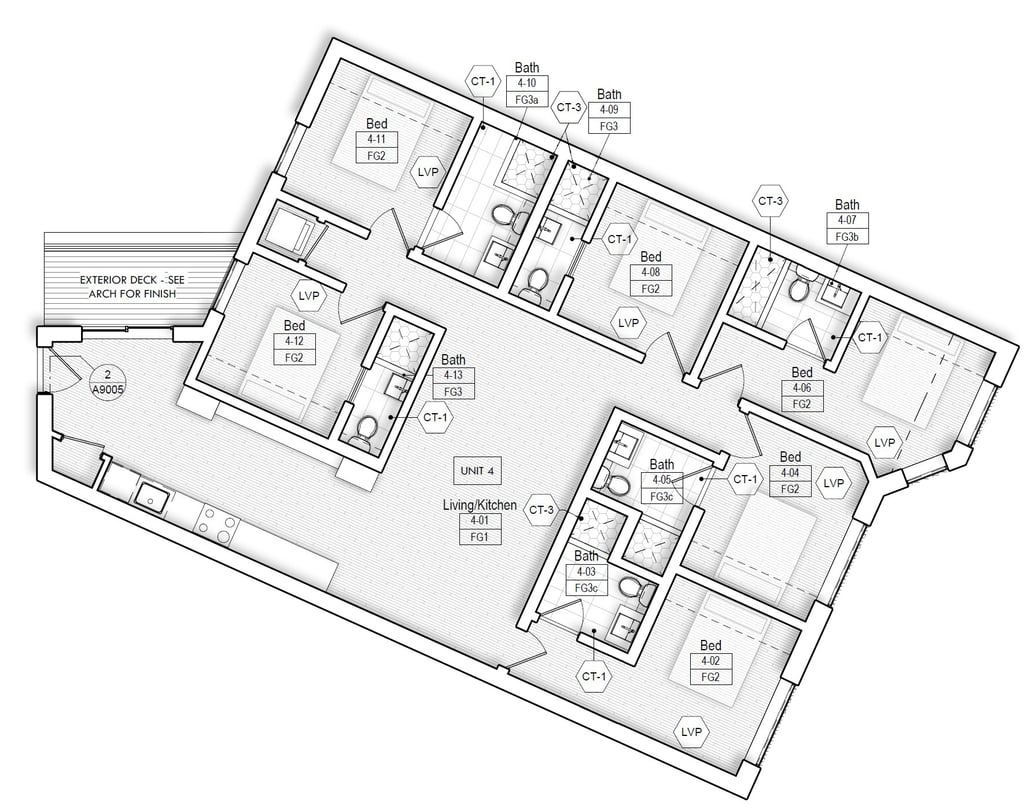
Vermont Avenue Cohousing is a design prototype for urban coliving, providing 47 bedrooms and 41 bathrooms spread across 9 residential units. The ground floor hosts a retail storefront along the street, and the rooftop provides a community gathering space to be shared among the residents. Fenestration was carefully considered to optimize daylighting and ventilation to all bedrooms. A central courtyard in the middle provides additional light to units and the opportunity for private balconies facing away from the street.
This project was completed while employed at Square 134 Architects in 2021. Bryan Samuel served as the Project Architect. Finish photography by Jessica Marcotte.






Facade Detail
Rooftop Trellis
Building Facade




Unit Floor Plan
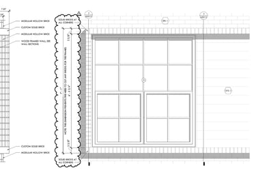
Brick Window Frame Detail
Ipe Trellis Bracket Detail




