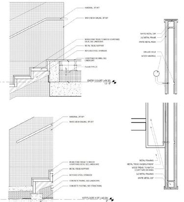
Airdome is a 39 unit mixed-use development. The design and name were inspired by the site's former use as an outdoor amphitheater, drawing on its Art Deco heritage. The project also incorporates extensive gardens over 4 levels, including a two-story entry court with a signature curving stairway.
This project was shelved during the construction document phase in 2018. The designs were developed while employed at Square 134 Architects. Bryan Samuel served as the Project Architect.


Exterior Concept




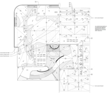
Entry Courtyard Axon
Wall Section Axons


Sculptural Stair Details




